Megaproiect la Cluj: 10.000 de apartamente, un nou mall, heliport pentru SMURD și telegondolă până la aeroport
- Scris de Ziua de Cluj
- 11 Dec 2020, 14:10
- Economie
- Ascultă știrea
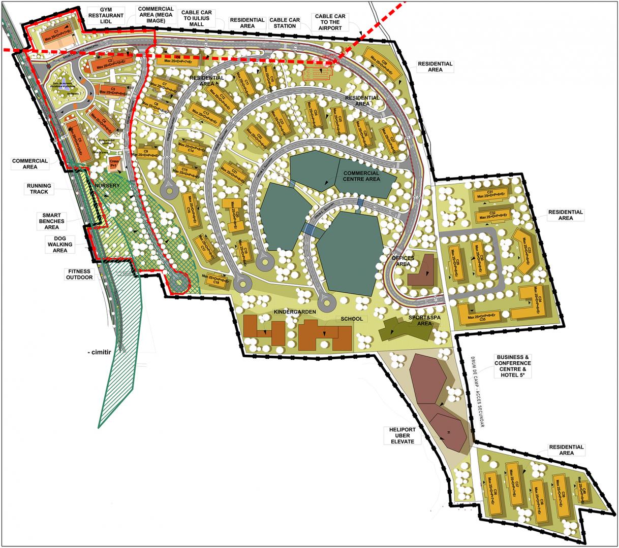
Cel mai mare proiect imobiliar din România, evaluat la 700 de milioane de euro, urmează să fie lansat la Cluj. Transilvania Smart City va avea 10.000 de apartamente, mall pe 100.000 mp, hoteluri, birouri, școli, telegondolă, heliport, iar livrarea produselor în interiorul "mini-orașului" se va face cu drone.
Dezvoltatorul clujean SDC Imobiliare, alături de mai multe fonduri de investiții din străinătate, se pregătește să lanseze Transilvania Smart City (TSC). Proiectul va include 10.000 de apartamente, un mall, școală, grădiniță, creșă, supermarketuri, un hotel și un aparthotel, spații de birouri, parcuri și săli de conferință, zonă de recreere, socializare și plimbare, un amfiteatru, dar și un heliport. Lucrările ar putea începe din ianuarie 2021.
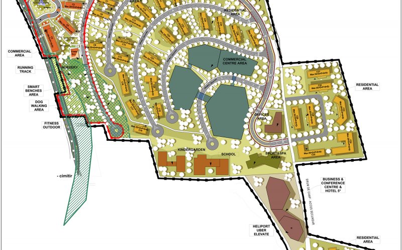
Prima etapă se va desfășura pe 3 ha și va include 800 de apartamente, un aparthotel, creșă, magazine, cafenea, restaurante, sală de sport, bancă, un magazin Lidl și un parc. Lucrările pentru prima etapă sunt estimate să fie încheiate în 18-24 de luni.
TSC a ținut cont și de nevoile comunității clujene, astfel că proiectul prevede atât clădiri cu funcțiuni educaționale - școală, grădiniță, creșă, cât și de recreere și sănătate - parc, zonă de sport & spa, pistă de alergare, outdoor fitness și o zonă destinată animalelor de companie.
De asemenea, dezvoltatorul a plecat urechea la solicitările autorităților și va investi într-un heliport, care are deja acceptul Autorității Aeronautice și va fi pus la dispoziția SMURD.
Heliportul TSC se află într-o poziție excelentă, pentru că în apropiere va trece Centura Metropolitană, care va asigura legătura atât cu viitorul Spital Monobloc pentru Copii din Borhanci, cât și cu Spitalul Regional de Urgență de la Florești. Distanța de la heliport la cele două unități medicale, pe centură, este mai mică și asigură transportul rapid al pacienților. Acum, elicopterele SMURD aterizează pe Aeroportul Cluj, dar sunt nevoite să înfrunte traficul din oraș în drum spre spitale, a explicat pentru ZIUA de CLUJ Ștefan Berciu, proprietarul SDC Imobiliare, compania clujeană care dezvoltă proiectul alături de o serie de fonduri de investiții străine.
Mall-ul de la TSC va avea 100.000 mp, iar livrările la domiciliu în interiorul acestui megacomplex vor fi efectuate cu ajutorul dronelor, a mai spus pentru Profit.ro Ștefan Berciu. Acesta a construit la Cluj, în ultimii 15 ani, peste 15.000 de apartamente și mai multe spații comerciale, hale și birouri.

Transilvania Smart City va fi realizat pe un teren de 350.000 mp de pe str. Moș Ion Roată, pe unul dintre dealurile Clujului, în apropiere de Iulius Mall. TMS este conceput ca un mic oraș prin care vor circula autobuze electrice, șoferii vor putea vedea direct de pe smartphone care sunt locurile libere de parcare, iar nivelurile de poluare și zgomot vor fi identificate prin senzori.
O telegondolă va lega cartierul de aeroport, dar și de centrul comercial Iulius Mall. Cartierul va avea stații pentru încărcat mașini electrice, concierge și stație pentru drone, cu care vor fi livrate pachete la domiciliu.
Proiectul prevede și amenajarea a două lacuri, un amfiteatru în aer liber, spa și piscină interioară și exterioară. Cartierul va avea propriul sistem de pază, monitorizare și supraveghere.
Ștefan Berciu mai spune că banii necesari construcției provin atât din surse proprii, cât și de la mai multe fonduri de investiții străine. Proiectul, pentru care planul urbanistic zonal este aprobat, va fi construit în cinci ani.











