Foto Proiect ambițios la Cluj: Manej pentru cai unde se vor organiza și competiții
- Scris de Sergiu Vlăgea
- 22 Ian 2026, 12:13
- Administraţie
- Ascultă știrea
Urbaniștii județului Cluj au dat, joi, aviz favorabil construirii unui spațiu de întreținere și antrenament cai (manej), în comuna Aiton.
Proiectul a fost prezentat joi, 22 ianuarie 2026, în ședința Comisiei Tehnice de Amenajare a Teritoriului și de Urbanism (C.T.A.T.U) a județului Cluj.
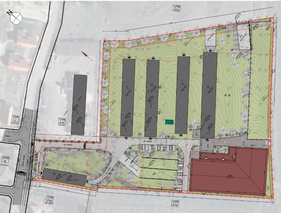
Conform documentației, terenul în cauză este situat în partea de est a localității Aiton, cu acces din drumul comunal existent la nord de parcelă. Terenul este în proprietatea SC AQUA SERV SRL. Terenul are suprafața conform CF de 21.182 mp.

„Beneficiarul doreşte să exploateze, în condiţiile reglementate de către PUG, terenul aflat în proprietatea lui. Noua construcţie va trebui să răspundă cerințelor unui spațiu de întreținere și antrenament cai (manej), de parcari și de spații verzi. Regimul de înălţime va fi corelat cu indicii urbanistici pentru a evita o supraconstruire a lotului”, se arată în memoriul tehnic.
Accesul auto se va realiza de pe drumul comunal existent la nord. Se vor asigura un număr de 18 parcări pe parcelă. De asemenea, se va amenaja spatiul verde aferent astfel încât acesta să răspundă cerințelor și să fie un plus din punct de vedere estetic.
„Amplasamentul este pe fosta ferma de vaci, nu pe toată, dar pe una dintre aceste facilități, unde sunt grajduri pentru cai de călărie. Vrem să construim un manej acoperit. Acest manej este destinat și unor viitoare competiții”, a explicat arhitectul Horațiu Răcășan.
Arhitectul șef al județului Cluj, Claudiu Salanță, a propus un aviz favorabil, precizând doar sa se scrie în mod clar în documentație că proiectul nu generează zonă de protecție sanitară.















